九游官网-50年专业游艇制造商|碳纤维技术|全球交付2000+艘

关闭
㊣顺义区懋源璟橒官方售楼处发布✦懋源璟橒官方网站@认证
作者:小编 日期:2025-09-07 点击数: 

  开发商营销中心向您发出诚挚邀约,一键轻松预约,即可专享内部绝无仅有的折扣优惠!独具匠心打造的精品楼盘项目荣耀登场,以卓越品质恭候您亲临品鉴,开启理想家园的甄选之旅。

  温馨提示:若想获取楼盘当下最新在售户型与价格信息,欢迎随时致电,专业销售顾问将为您提供一对一贴心服务,全程陪伴您的购房之路!

㊣顺义区懋源璟橒官方售楼处发布✦懋源璟橒官方网站@认证(图1)

  一层面积290㎡,地下2层,每层200多平,此房总面积约800平,价格:3800万起。

  2、307㎡的下跃有2套,在2号楼,总面积约800平以上,价格:4000万左右。

  位置:项目位于北京西式别墅发源地,中央别墅区核心正源天竺版块,行车动线为机场高速杨林出口(罗红艺术馆)向北,天竺公园西侧;

  项目东侧一路之隔为约80亩天竺公园,周边还有中粮祥云小镇、欧陆广场、德威英国国际学校、ISB顺义国际学校、鼎石学校、青苗国际双语学校(顺义校区)、罗红艺术馆、松美艺术馆、黑骑士球员俱乐部、北医三院顺义院区、北京友谊医院(顺义院区)、中国国际展览中心、斯普瑞斯奥特莱斯等,各种生活、休闲配套醇熟。

㊣顺义区懋源璟橒官方售楼处发布✦懋源璟橒官方网站@认证(图2)

  懋源·璟橒仅规划217套房源,所有产品面积尺度均在约300㎡以上,塑造纯质低密高端圈层。其主力产品为合院、叠墅和平墅,每种产品都亮点突出,于超越之上再创新。

  懋源·璟橒合院别墅,承袭懋源“别墅功能分层化”设计,分设主人奢享层、家人起居层、圈层社交层、景观餐厨层、生活娱乐层,下沉式的庭院设计,将每一层功能的纯粹性和尺度推向极致。

  懋源·璟橒叠墅,首创双6.6米挑空设计,将奢华与风格带到令人振奋的新层次。270°全景客厅,配以超大窗扇的落地窗,将温榆河湾的四季美景,框定为装点居室的最美画卷。

  懋源·璟橒平墅,反而是最稀缺的产品。奢阔的约300㎡空间,动静分区,最大化呈现墅境特质。超百平米的餐、客、厨、庭院组成的LDKG一体化--互动社交空间,舒展的开放式布局,大面积落地玻璃窗,让奢华的空间变得轻盈透通。

㊣顺义区懋源璟橒官方售楼处发布✦懋源璟橒官方网站@认证(图3)

  独创复合幕墙:以繁复的工艺工法独创“复合幕墙体系”,以干挂石材为主,配以彩釉玻璃、杂拼面砖、氟碳金属板等九大材质融汇让建筑的尊贵感历久弥新;

  奢阔层高空间:层高高,入户层层高约4.2米,最高层高约4.5米,市面上很少有产品能做到这种层高尺度。

  户户私家电梯:功能分区,室内有电梯,区域内大部分别墅没有电梯基本都是地上两层,家里人口多功能分区不明显,但璟橒既有电梯,又能功能分区。

  星级专业厨房:一整层的餐厨层打造趋向极致,在空间功能、设备标准、操作动线方面、整合了国际顶级专业厨师的团队意见。结合星级酒店商用、家用标准,所有配置及尺度规格均达到专业级别,同时厨房,餐厅,庭院互为一体,让我们家人更多的参与到生活,回归到家庭里面。

  私享归家礼序:有独立的入户门头,先入户再入院,给您一个很好的归家仪式感。

  大师精装设计:项目合院产品为WSD世尊设计作品,WSD世尊设计隶属于著名设计师吴滨创立的WS世尊集团,吴滨先生是Andrew Martin国际室内设计大奖全球年度大奖首位华人获得者。

  【圈层社交层】会客厅+书房/卧室、约4.2米舒适层高、客厅约8.3米超大面宽、整面落地窗尺度达约6.7米宽,彰显主人奢阔礼序;

㊣顺义区懋源璟橒官方售楼处发布✦懋源璟橒官方网站@认证(图4)

  【家庭私享层】约3.3米标准层高;南北分别为男孩+女孩套房设计,给予孩子们各自专享的空间,另享学习室/起居室,可供孩子们阅读、嬉戏

㊣顺义区懋源璟橒官方售楼处发布✦懋源璟橒官方网站@认证(图5)

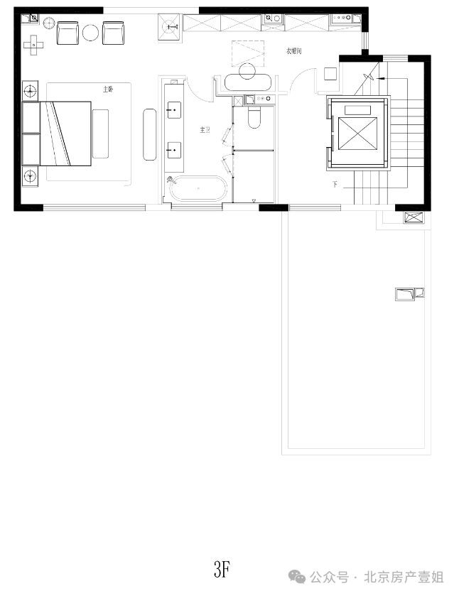
  【主人奢享层】奢享级的主人套房空间,设计南向大尺度开窗,开放式步入式衣帽间,同时配置豪华主卫,双台盆和干湿分离设计,更有窗景大浴缸,提升主人的生活品质。

㊣顺义区懋源璟橒官方售楼处发布✦懋源璟橒官方网站@认证(图6)

  【景观庭院层】专业级餐厨空间+观景花园庭院、享约4.2米奢阔层高、全景落地窗,打造私家定制中西餐厨,所有配置及尺度均达到专业级别。15千瓦功率双头猛火炒灶、4眼平头灶、专业排烟补风系统、进口专业万能蒸烤料理机、卧式速冻平台雪柜、专业制冰机,洗碗机,让厨房至多可满足40人规模的宴会或PARTY供餐!

㊣顺义区懋源璟橒官方售楼处发布✦懋源璟橒官方网站@认证(图7)

  【生活娱乐层】全家庭娱乐空间、约4.5米层高;本层主要为私属电影院及私享停车位,另还设置了家政间、储物间等空间,开放式设计,也可作为主人藏品收藏的专属储藏间。

  一层一境:以一层一境的空间演绎方式,首层定义为“enjoying空间”大挑高空间融合环景会客厅,提升整体空间感,庭院连接餐、厨、客等生活场所,以空间规划将室内外的景观融合,引景入室,二层定义为“living room”,作为私人空间,以家庭厅串联起公共区域,南北分别为孩子及主人私享卧室空间;

  双6.6米挑空空间:楼梯空间与八角厅早餐空间的双约6.6M挑高设计,楼梯采用异形一体成型钢结构为主体,金属和木作为基层,玻璃挡板采用3D异形热弯钢化玻璃,实心不锈钢栏杆搭配手工缝制皮革,碳纤维侧板;

  双2.5米进深庭院规制:户户双庭院,南向客厅室外庭院(约30平米)+早餐厅➕主餐厅连接边窗室外庭院(约10平米),且双庭院均为约2.5M进深规格(常规项目约1.5M进深的阳台,使用性不高),通常在南方和海外的高端豪宅上才有这样的配置;

  浪漫八角早餐厅:约6.6米的挑空设计,将空间九游娱乐官方网站的尺度向上延伸,配合270度观景窗,让早餐厅相较正餐厅而言,无需正襟危坐,多了一份慵懒和温馨自在。

  270度全景落地窗:首层九游娱乐官方网站近约16.6M纵向观景面 以及 270度超广寰幕视野,开窗尺度大,且都是大落地窗;另外总高9层,每栋楼之间楼间距约30米,采光好;

  双画幕观景客厅:客厅L型双面落地观景布局,南向约4.5M落地窗观景面,西(或东向)约5M落地窗观景面,超大观景面双画幕,客厅真正的藏于景观环抱之中;

  奢享主卧套房:超大的主卧套房带书房(灵动空间,可改为女主人衣帽间、婴儿房等),同时主卧南向约6米面宽带约4.5米宽的飘窗,豪华的景观主卫临窗而设超大浴缸,双面盆设计且下设置物空间;

  大师精装设计:邀请国际知名设计师邱德光先生的佳作,采用现代都会设计风格,引入游艇设计概念、配合超大面宽落地窗,内外皆有景,景景异不同;

  推拉门设计:南向压合推拉门的设计,全五金件均为欧洲进口,造价成本极高,单扇推拉门的重量达到约380公斤,三层双中空的设计,玻璃的厚度达到约10毫米(正常项目的玻璃厚度只有约4.6豪米),保证室内的温度及湿度,同时这种大开启的方式,使视野更加开阔,通透。

  开发商营销中心向您发出诚挚邀约,一键轻松预约,即可专享内部绝无仅有的折扣优惠!独具匠心打造的精品楼盘项目荣耀登场,以卓越品质恭候您亲临品鉴,开启理想家园的甄选之旅。

  温馨提示:若想获取楼盘当下最新在售户型与价格信息,欢迎随时致电,专业销售顾问将为您提供一对一贴心服务,全程陪伴您的购房之路!

顶部